Bay and flag windows
How to draw bay and flag windows in the Drawing Board.
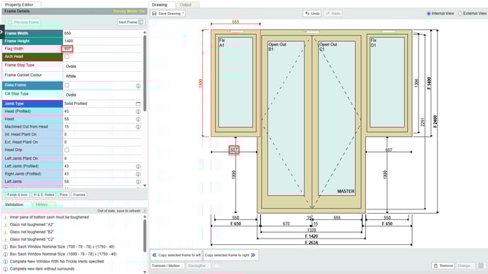
- Any drawing with more than one frame is treated as a bay window in integrate. To add additional frames to a drawing, select an existing frame and click Copy selected frame to left / right.


- Each frame can be selected individually, allowing you to specify different widths and heights:

- Bay windows also have an additional property: Frames can be selected in the explorer menu on the right (or at the bottom of the Property Editor):


Here you can change the bay type, and specify the gap and angle between the frames.- Bay angles are measured internally - a flat/in-line bay would be 180 degrees. Please note that since the Drawing Board is a purely two-dimensional visual representation, the angles specified will not affect how the drawing is rendered, but the angles can be displayed on the internal Schedule of Work outputs.
- If you choose Fully coupled as the bay type, you will also need to set the gap to 0.

- For fully coupled angled bays, it may also be useful to select each individual frame and use the Left / Right Outer Jamb Extension properties to extend the outer liner where it meets the adjacent one.

- If you select Flag window, the jamb overlap will automatically be set based on the profiled width of the adjacent jambs.

Selecting the left or right frame will allow you to specify the Flag Width, which is effectively the overhang: