How to make an arched French door
A quick guide outlining the differing options for creating arched French doors
Creating arched doors is quite straight forward, making use of the "Arch Head" tick box option within integrates drawing board.
We will review how create a curved frame French door and a curved sash French door.
Creating a curved frame French door
1. Create an item and select a standard single door frame.

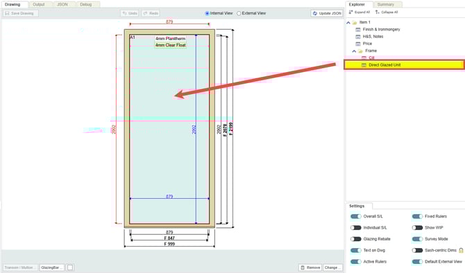
2. Now we want to place the French doors within our frame, to do so please select the glass by either clicking the glass within the window on the drawing board or clicking the "Direct Glazed Unit" within the explorer located on the right hand side.

3. You will see a small "Change" button located to the bottom right of the drawing, select this and choose the "French Door" option from within the list.

4. Now we have the French doors within our frame we want to now arch the head of the frame. This can be done by selecting the frame this time by either using the explorer or clicking on the frame in the drawing.
After you have selected the frame you will see the "Property Editor" on the left hand side of the drawing board. Locate the option for "Arch Head" and enable this tick box, in doing so three properties (Arch Radius, Arch Height and Shoulder Height) should appear.

5. To create the curve on the frame, adjust the values in the newly displayed input fields. For this example, we will set the height to 500mm. As soon as you enter a value for either the Radius or Height, the corresponding arch will be visualized on the drawing board. Please note that when you input one value, the other will be automatically calculated by the software.
Calculation
Arch Radius = (Height / 2) + (Width^2 / (8 * Height))

Creating an arched sash French door
Creating an arched sash French door closely follows the process for designing an arched frame, however with the exception of simply unselecting the frame head option.
To begin, select either the left or right "Door Leaf" by clicking on it directly in the drawing board or by using the explorer on the right.
Once you have selected a door leaf, you can proceed to uncheck the "Curved Frame Head" option. This will leave the "Curved Sash Head" and "Frame Level Arch" options active, allowing you to create the desired arched sash design.
