Understanding Transom/Mullion Offset
Learn about using frame and sash dividers for practical or aesthetic reasons.
Key Points: Understanding Transom/Mullion Offset
1. Setting frame dividers.
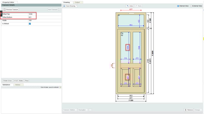
For transoms and mullions in a frame, offset is measured from the edge of the frame to the centre point of the transom/mullion. Go to settings, then organisation, then DrawingBoard. Set frame ruler settings to centre.


2. Setting sash dividers.
For transoms and mullions in a sash (including door rails and muntins), the offset is measured as the sightline of the adjacent glass or panel. Set offset in the DrawingBoard by switching on the sightline rulers, found in the settings panel in the bottom right.
